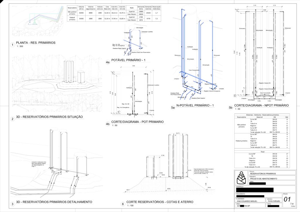
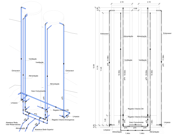
Importância
Garantir um projeto adequado de abastecimento de água é uma medida preventiva que impacta diretamente a segurança da edificação e de seus usuários. Quando o sistema é planejado com critério, reduz-se significativamente o risco de falhas no fornecimento e de situações que possam comprometer a qualidade da água distribuída.
Por outro lado, um projeto mal dimensionado tende a gerar problemas que se acumulam com o tempo. A escassez em determinados pontos da edificação, oscilações no fornecimento ou mesmo riscos de contaminação são consequências comuns quando o planejamento não considera as reais demandas do local.
Além dos aspectos relacionados à saúde, a falta de organização no sistema de abastecimento afeta o uso racional da água. Perdas invisíveis, distribuição irregular e consumo acima do necessário acabam refletindo tanto na operação diária quanto nos custos ao longo dos anos.
Um projeto bem elaborado antecipa essas situações. Ele organiza o sistema de forma equilibrada, assegura a continuidade do fornecimento e contribui para um uso mais consciente dos recursos hídricos, trazendo estabilidade para o empreendimento e tranquilidade para quem o utiliza.